Logotipo Fer Et Ciment constructora en León Guanajuato Fer Et Ciment

TRINIDAD

2026 León, Guanajuato
swipe_right Desliza para ver más

Nave Industrial de Alta Eficiencia

Infraestructura de gran escala enfocada en la eficiencia operativa, optimización de cubiertas y entrada de luz natural cenital.

Vista aérea de nave industrial Trinidad con cubierta metálica de gran formato, proyecto de construcción industrial Fer Et Ciment en León Guanajuato
Fachada exterior de nave industrial Trinidad con acceso vehicular y área de maniobras, Fer Et Ciment constructora León
Interior de nave industrial Trinidad en proceso de construcción con estructura metálica y vigas de acero, Fer Et Ciment Guanajuato
Interior amplio de bodega Trinidad terminada con piso de concreto industrial, constructora Fer Et Ciment León
Estructura metálica y cerchas de acero de nave industrial Trinidad en construcción, Fer Et Ciment Guanajuato
Plano arquitectónico de nave industrial Trinidad con distribución de áreas, proyecto industrial Fer Et Ciment el Bajío

San Juan Bosco

2025 León,Guanajuato, México
swipe_right Desliza para ver más

Complejo Logístico Industrial

Bodega de estructura robusta diseñada para el resguardo eficiente y la gestión de carga a gran escala.

Interior de nave industrial Galguera con iluminación cenital y piso de concreto pulido, constructora Fer Et Ciment Guanajuato
Perímetro exterior de bodega industrial Galguera con cerramiento metálico y malla perimetral, Fer Et Ciment León
Mezzanine y estructura interior de bodega Galguera durante construcción, obra industrial Fer Et Ciment León Guanajuato
Estructura metálica terminada de nave industrial Galguera con columnas y vigas de acero, Fer Et Ciment
Grúa elevadora trabajando en montaje de estructura metálica de nave Galguera, construcción industrial Fer Et Ciment
Plano arquitectónico de bodega industrial Galguera con distribución de espacios, Fer Et Ciment constructora Bajío

CLASBEN Park

2024 Guanajuato, México
swipe_right Desliza para ver más

Centro de Distribución Corporativo

Nave industrial con frente administrativo integrado, combinando estética corporativa y funcionalidad operativa.

Nave industrial Clasben terminada con fachada corporativa y patio de maniobras, Fer Et Ciment León Guanajuato
Armado de estructura metálica de nave industrial Clasben en León, construcción industrial Fer Et Ciment Guanajuato
Colado de losa y cimentación de bodega industrial Clasben, obra civil constructora Fer Et Ciment en el Bajío
Vista aérea del perímetro de nave industrial Clasben en etapa de construcción, Fer Et Ciment León
Columnas y techumbre de estructura metálica de nave Clasben, proyecto industrial Fer Et Ciment Guanajuato
Plano arquitectónico de nave industrial Clasben con distribución de áreas y accesos, Fer Et Ciment constructora

VALTIERRA

2023 León,Guanajuato, México
swipe_right Desliza para ver más

Nave de Maniobras Logísticas

Diseño de naves industriales con enfoque en identidad corporativa y eficiencia logística.

Fachada exterior de bodegas Valtierra con acceso vehicular amplio, construcción industrial Fer Et Ciment en Guanajuato
Interior de nave industrial Valtierra con piso de concreto pulido y estructura metálica de acero, Fer Et Ciment
Vista interior de bodega Valtierra con iluminación lateral y columnas metálicas, constructora Fer Et Ciment León
Nave industrial Valtierra con columna central y cubierta de lámina acanalada, Fer Et Ciment Guanajuato
Interior amplio de bodega Valtierra con sistema de iluminación industrial y piso terminado, Fer Et Ciment León
Master plan del complejo de bodegas Valtierra con distribución de naves y accesos, proyecto industrial Fer Et Ciment

DELTA

2022 Guanajuato, México
swipe_right Desliza para ver más

Terminal Logística Delta

Nave de gran formato con diseño minimalista, enfocada en la durabilidad y la capacidad de almacenamiento industrial.

Fachada exterior de nave industrial Delta terminada con acceso de carga y patio de maniobras, Fer Et Ciment León
Inicio de obra con trazo de cimentación de bodega Delta en León Guanajuato, construcción industrial Fer Et Ciment
Terracería y preparación de terreno para nave industrial Delta, obra civil constructora Fer Et Ciment Guanajuato
Estructura metálica y cerramiento lateral de bodega Delta en proceso, construcción industrial Fer Et Ciment Bajío
Interior de nave Delta con columnas metálicas y piso industrial, constructora Fer Et Ciment León Guanajuato
Plano arquitectónico de bodega Delta con distribución de espacios y áreas de maniobra, Fer Et Ciment

BOLOSMART

2022 Guanajuato, México
swipe_right Desliza para ver más

Parque Logístico Bolosmart

Conjunto industrial de diseño sobrio y moderno, proyectado para el almacenamiento seguro y la eficiencia administrativa.

Vista exterior de parque logístico Bolosmart en zona urbana de León Guanajuato, construcción industrial Fer Et Ciment
Construcción de muros perimetrales y cerramiento de nave Bolosmart en León, obra industrial constructora Fer Et Ciment
Montaje de estructura metálica de cubierta de bodega Bolosmart, construcción industrial Fer Et Ciment Guanajuato
Interior de nave Bolosmart con amplio espacio de almacenamiento y piso de concreto, constructora Fer Et Ciment
Vista interior de bodega Bolosmart con techumbre de lámina y pilares metálicos, Fer Et Ciment León Guanajuato
Plano tabloide de bodega Bolosmart con dimensiones y distribución de nave industrial, Fer Et Ciment constructora

PLAZA MAGNOLIA

2025 León, Guanajuato
swipe_right Desliza para ver más

Centro Comercial Magnolia

Desarrollo comercial de dos niveles con estacionamiento al frente, destacando por su estructura limpia y moderna.

Vista aérea de Plaza Magnolia terminada con estacionamiento y locales comerciales en dos niveles, Fer Et Ciment León Guanajuato
Estructura metálica de Plaza Magnolia en proceso de construcción con palmas decorativas, constructora Fer Et Ciment León
Avance de obra en Plaza Magnolia con columnas y losa de entrepiso, construcción comercial Fer Et Ciment Guanajuato
Etapa de acabados exteriores de Plaza Magnolia con fachada y área de estacionamiento, Fer Et Ciment León
Vista aérea de Plaza Magnolia con locales comerciales y área verde, proyecto comercial Fer Et Ciment en el Bajío
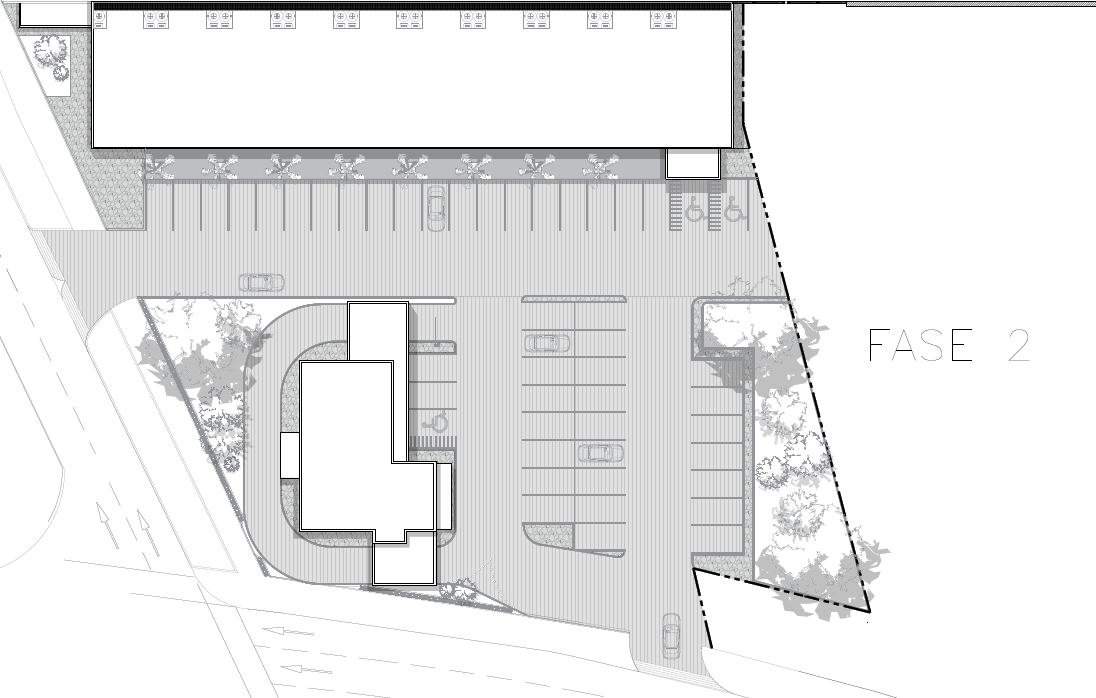
Plano arquitectónico de Plaza Magnolia con distribución de locales comerciales y estacionamiento, Fer Et Ciment

EUROPLAZA

2017 León, Guanajuato
swipe_right Desliza para ver más

Plaza Comercial Europlaza

Complejo comercial de arquitectura funcional con plazas abiertas y diseño enfocado en la visibilidad de los locales.

Vista exterior de Europlaza con locales comerciales en planta baja y segundo nivel, construcción comercial Fer Et Ciment León
Planta baja de Europlaza con locales comerciales iluminados en noche, proyecto comercial Fer Et Ciment Guanajuato
Pasillo exterior de Europlaza con accesos a locales y jardinería, construcción comercial Fer Et Ciment León
Terraza y área de estacionamiento de Europlaza en León Guanajuato, constructora Fer Et Ciment
Fachada lateral de Europlaza con columnas y acceso peatonal, proyecto comercial Fer Et Ciment el Bajío
Plano arquitectónico de Europlaza con distribución de locales y accesos peatonales, Fer Et Ciment constructora

SIT Echeveste

2016 León, Guanajuato
swipe_right Desliza para ver más

Estructura Metálica de Gran Claro

Edificación de alta ingeniería que utiliza cubiertas de acero para crear espacios interiores libres de obstrucciones.

Cubierta de estructura metálica de gran claro del proyecto SIT, construcción industrial Fer Et Ciment León Guanajuato
Detalle de vigas y cerchas de acero de estructura SIT en León, obra de construcción metálica Fer Et Ciment
Vista interior de estructura SIT con cubierta metálica y espacio libre de columnas, Fer Et Ciment Guanajuato
Exterior de estructura metálica SIT con cubierta de lámina y cielo abierto, constructora Fer Et Ciment León
Fachada lateral de estructura SIT con accesos y muro de fachada, proyecto Fer Et Ciment en León Guanajuato
Plano arquitectónico del proyecto SIT con distribución de espacios y estructura metálica, Fer Et Ciment constructora

PATRIA CHICA

2015 León, Guanajuato
swipe_right Desliza para ver más

Espacio Gastronómico Premium

Restaurante de atmósfera acogedora con diseño de interiores sofisticado, iluminación cálida y mobiliario a medida.

Fachada exterior del restaurante Patria Chica con letrero iluminado y dinosaurio decorativo, construcción comercial Fer Et Ciment León
Interior del restaurante Patria Chica con decoración industrial vintage, iluminación cálida y mesas de madera, Fer Et Ciment
Acceso principal de restaurante Patria Chica con arco de ladrillo y vegetación, construcción de interiores Fer Et Ciment León
Detalle de pared con papel tapiz artístico y butacas en restaurante Patria Chica, acabados interiores Fer Et Ciment
Barra de servicio con iluminación puntual y estantería en restaurante Patria Chica León, Fer Et Ciment
Plano arquitectónico de proyecto gastronómico Patria Chica con distribución de espacios, Fer Et Ciment constructora

Parque Campestre

2016 León, Guanajuato
swipe_right Desliza para ver más

Zona de Servicios "Parque Campestre"

Área social al aire libre con techumbres tensadas, mobiliario urbano y diseño paisajista para eventos gastronómicos.

Entrada del Parque Campestre con letrero y zona de food trucks en León Guanajuato, construcción Fer Et Ciment
Zona de food trucks con techumbres tensadas de lona y mesas al aire libre, proyecto gastronómico Fer Et Ciment León
Área de comensales con sombreaderos tensados y camiones de comida, construcción comercial Fer Et Ciment Guanajuato
Espacio exterior con estructura de toldos y área de convivencia, proyecto urbano Fer Et Ciment en León
Vista panorámica del parque de food trucks con capacidad para múltiples locales, constructora Fer Et Ciment León
Plano arquitectónico de zona gastronómica Parque Campestre con distribución de locales, Fer Et Ciment

CHURRERÍA

2016 León, Guanajuato
swipe_right Desliza para ver más

Local Comercial de Especialidad

Cafetería de diseño acogedor que resalta por sus acabados en madera, iluminación puntual y distribución optimizada.

Mostrador y barra de atención de churrería con revestimiento en madera e iluminación cálida, acabados interiores Fer Et Ciment
Interior de churrería con barra de trabajo y equipo de cocina, construcción de local comercial Fer Et Ciment León
Vista general interior de churrería con área de servicio y decoración en madera, acabados Fer Et Ciment Guanajuato
Fachada de vidrio y acceso de churrería en local comercial, construcción comercial Fer Et Ciment León Guanajuato
Área de preparación y mostrador de churrería con iluminación puntual, acabados interiores Fer Et Ciment
Plano arquitectónico de local comercial churrería con distribución de áreas de trabajo, Fer Et Ciment constructora

MISIÓN CAÑADA

2026 León, Guanajuato
swipe_right Desliza para ver más

Residencia Vanguardista

Vivienda unifamiliar de diseño contemporáneo que destaca por su fachada en piedra natural y grandes ventanales.

Fachada exterior de casa Misión Cañada con revestimiento de piedra natural y acceso vehicular, construcción residencial Fer Et Ciment León
Cocina de diseño contemporáneo con isla central, iluminación colgante y acabados en madera, residencia Misión Cañada Fer Et Ciment
Fachada principal de casa Misión Cañada con acabado en piedra y grandes ventanales, construcción residencial Fer Et Ciment Guanajuato
Sala de estudio con librería empotrada y techo de madera en residencia Misión Cañada, acabados interiores Fer Et Ciment León
Espacio interior de residencia Misión Cañada con piso porcelanato y acabados premium, construcción residencial Fer Et Ciment
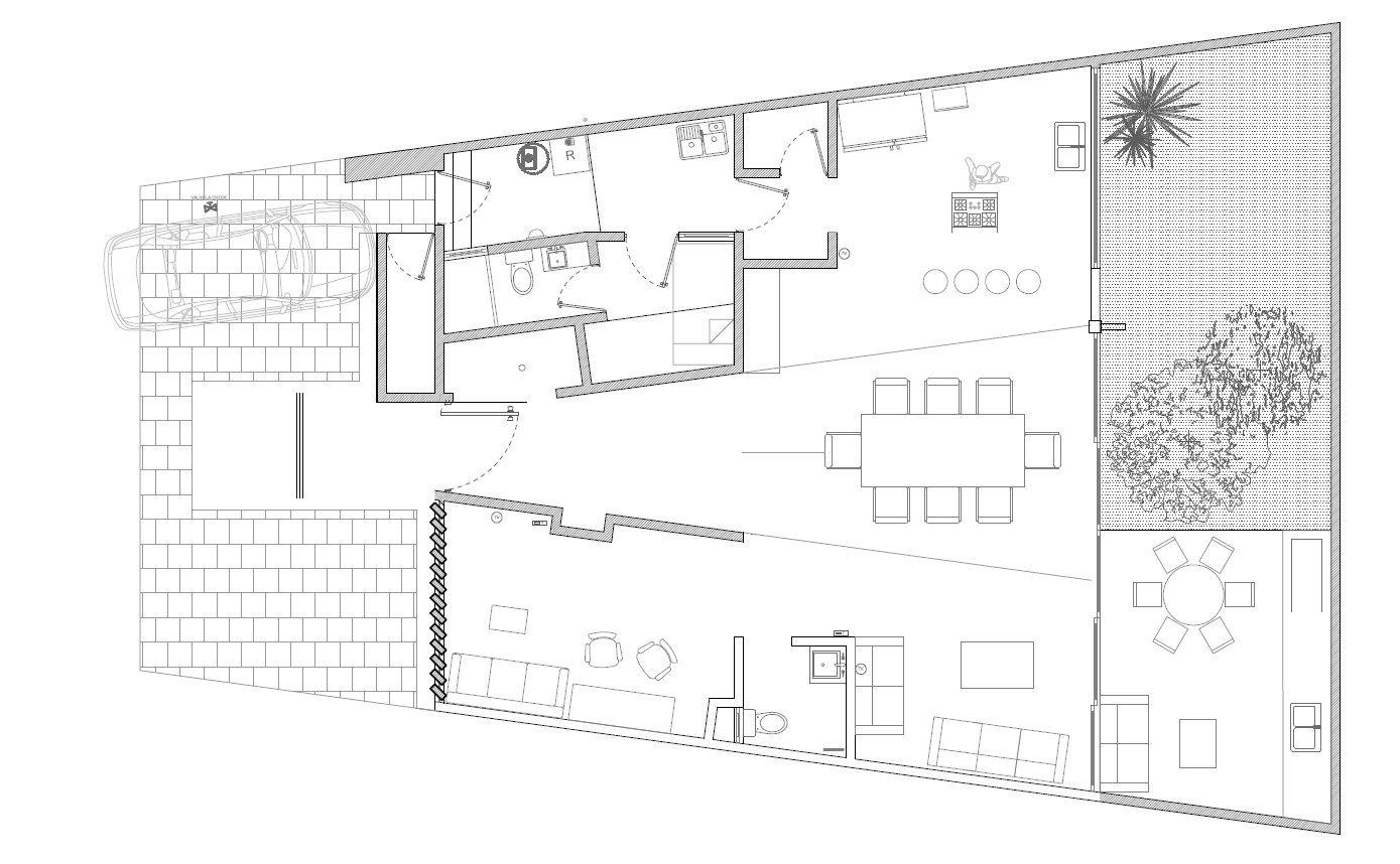
Plano arquitectónico de residencia Misión Cañada con distribución de planta baja y alta, Fer Et Ciment constructora León

CASA MG

2017 León, Guanajuato
swipe_right Desliza para ver más

Residencia Contemporánea MG

Vivienda unifamiliar de arquitectura moderna con fachada de concreto aparente y grandes ventanales, diseñada para maximizar la luz natural.

Fachada exterior de Casa MG con acabado de concreto aparente y acceso vehicular con porton, construcción residencial Fer Et Ciment León
Detalle de muro de piedra natural en interior de Casa MG con iluminación empotrada, acabados residenciales Fer Et Ciment
Cocina abierta de Casa MG con isla de concreto pulido e iluminación de diseño, construcción residencial Fer Et Ciment León
Fachada frontal de Casa MG con jardín y acceso peatonal, residencia contemporánea Fer Et Ciment en León Guanajuato
Interior de sala con acabados en madera y techo con vigas expuestas en Casa MG, constructora Fer Et Ciment Guanajuato
Plano arquitectónico de Casa MG con distribución de espacios interiores y exteriores, Fer Et Ciment constructora León